New Homes Myrtle Beach - Site will list all new homes in Myrtle Beach, SC
New Homes in Myrtle Beach
(843) 940-3609

This New Homes in Myrtle Beach site is focused solely on providing a simplified guide to all of the new home communities in Myrtle Beach, SC. This web site is independently managed to serve and support development of the Myrtle Beach community and is a unique Myrtle Beach new home resource. All Myrtle Beach new home communities are presented without the influence or dependence of community or builder advertising. Input to improving the quality of this community resource presenting new construction in Myrtle Beach is welcomed and appreciated. Information on this site was last updated May 2026.
Clearbrook
Myrtle Beach New Home Community By Lennar
John Doctor Road, Conway, SC, 29526
Clearbrook in Conway by Lennar
Clearbrook in Conway
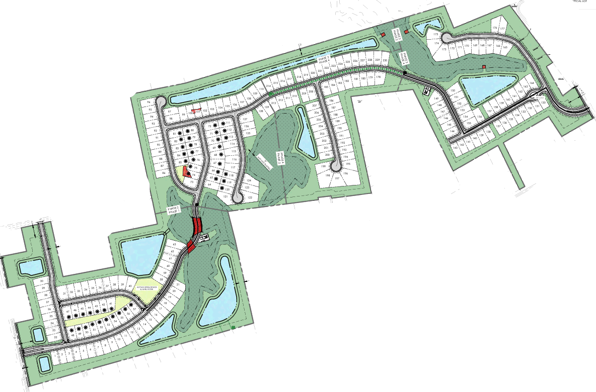
Conceptual Plan
Conceptual Plan of Clearbrook in Conway
Data Courtesy Horry County City Council
For Information Purposes Only
Data Subject to Change
Prices (estimate only) Starting from :
Summary of this Myrtle Beach Area New Home Community:
Lennar is planning the new home community of Clearbrook in Conway off of Highway 905 and John Doctor Road.

Clearbrook will be developed on an approximate 128-acre parcel of land just north of Highway 905 a couple miles northeast of downtown Conway.

The new home community of Clearbrook in Conway is currently in the planning stages and is being reviewed by the Conway Technical Review Committee.

There are 230 single-family homes being planned for Clearbrook.

The proposed new home community of Clearbrook will be developed as a conservation subdivision.

There are several dimensional requirements for a Conservation Subdivision, but perhaps the most notable is that the minimum Open Space required is 30% of the net buildable area. In other words, a minimum of 30% of the net buildable area of the property needs to be left undeveloped and needs to be used for both conservation of the natural environment and human recreation. Activities within the

Open Space are then restricted in perpetuity through the use of the Open Space Management Plan and an instrument of permanent protection.

Summarizing, a Conservation Subdivision is required to dedicate a significant amount of the subdivision to open space, and to achieve this objective, often times lot sizes are minimized to maximize the number of homes available to be developed on the remaining buildable area.

On March 17,2025, Conway City Council approved the new name Clearbrook.

Lennar Corporation is a home construction company based in Miami, FL. Since 1954, Lennar has built over one million new homes for families across America. Lennar builds in some of the nation's most popular cities, and their communities cater to all lifestyles and family dynamics, whether you are a first-time or move-up buyer, multigenerational family, or Active Adult. In 2023, Lennar was the second largest home construction company in the Unites States based upon number of homes sold. Lennar operates in 26 states and 75 markets across the Unites States. Lennar is well committed to building in the Myrtle Beach area. Lennar is actively building in over 20 communities in the Myrtle Beach area.

Existing Homes for Sale in this Myrtle Beach Area New Home Community:
The new home community of Clearbrook is still in the early planning stages.
Homes for Sale in Clearbrook

Myrtle Beach New Home Community News
New construction in Myrtle Beach - all active listings of new construction in Myrtle Beach
Myrtle Beach New Home Community News

Vansant Realty Group - real estate brokerage firm servicing Conway and the surrounding areas of Myrtle Beach.
(843) 940-3609
Planned Future Subdivisions in the Myrtle Beach Area
Clearbrook is one of several new future subdivisions planned for the Myrtle Beach area. See below for a more complete list of the future subdivisions planned for the Myrtle Beach area.
CommunityAreaAddressMulti-FamilySingle-Family
57th PlaceLongsWampee Road8080
Amerling RidgeLongsLong Acres Drive090
Anchors BayNorth Myrtle BeachCane Street017
Ash PlantationConwayHighway 707068
Barefoot LakesNorth Myrtle BeachMarsh Glen Drive059
Bayboro QuartersLorisHighway 450206
BaylineCalabashThomasboro Road3631796
Beachside Village CommonsMyrtle Beach3122 Shetland Lane043
Boggy EstatesConwayBoggy Road026
BrookhavenConwayJuniper Bay Rd & Hwy 37801200
Buck Creek CoveLongsHighway 9 East074
Calabash PointeCalabashHickman Rd NW & Hwy 172160
Calabay ParkLongsRte 9 & Hemingway Rd230400
CamberlyCarolina ForestTibwin Avenue058
Cameron PinesOcean Isle Beach101 Cameron Pines Drive0125
Cane Patch NorthMyrtle Beach76th Ave and Highway 17062
Carolina Forest WaterwayCarolina ForestRiver Oaks Drive0560
Carroll FarmsConwayW Hwy 19 and Hwy 668046
Cates BayConwaySpring Beauty Drive0116
Cates Bay CrossingConwayCates Bay Highway095
Chatham VillageCarolina ForestPostal Way15410
Church Street TownhomesMyrtle BeachChurch Street220
ClearbrookConwayJohn Doctor Road0230
Collins JollieConwayCollins Jollie Road01333
Colonial FarmsConwaySC Highway 54897131
Copper PointeConway116 Copper Pointe Loop0153
Cottages on MainNorth Myrtle BeachCedar Ave and Main Street019
Cottonwood CoveCarolina ForestRiver Oaks Drive018
Country Manor EstateConwayFour Mile Road049
Del Webb Ocean Isle BeachNorth Myrtle Beach3112 Wuther Squall Way150
Dockside PreserveNorth Myrtle BeachSandridge Road & Old Crane0127
Dunn's FerryConway1260 West Cox Ferry Road051
East Cox Ferry TownhomesConwayEast Cox Ferry Road750
Farm HavenAynorCostie Allen Road077
FarmsteadLittle RiverRoute 50 & McLamb Road NW315134
Finley WoodsLorisSuggs Street036
Forest View TownhomesCalabashAsh-Little River Rd NW1070
Forestbrook VillageForestbrook104 Long Cane Drive3000
Fox BayLorisCarolina Drive012
Fox HollowCalabash423 Pea Landing Rd NW0166
Glenwood at Cates BayConwayCates Bay Highway0100
Grande PinesSocasteeHwy 17 and Hwy 544143107
Half Moon BayLongsToanki Lane and Tallwood Rd 800
Haven at Wild WingConwayWild Wing Boulevard5340
Heron LandingLongsKayla Circle0140
Hickman Branch TownhomesCalabashHickman Road NW3160
HomesteadConwayHighway 9050127
Hudson Creek at Palmetto HarborNorth Myrtle BeachCenith Drive033
Hugo Road EstatesConwayHugo Road053
Indigo BayMyrtle Beach3050 Vasco Loop0160
Islecrest at Grande DunesMyrtle Beach79th Ave & Marina Pkwy0111
Islewater at Grande DunesMyrtle Beach79th Ave & Marina Pkwy086
Jinny's CreekShallotte1178 Goose Creek Road SW0129
Juniper BayConway1400 Busy Corner Road061
Kingston LakesLongs7650 S. Highway 9093
Kingston PreserveConwayHwy 378 & Hemingway Chapel Rd0407
LaDane GardensOcean Isle Beach7060 Old Georgetown Road SW0525
Leisure LaneSocasteeLeisure Lane0154
Long Bay VillageNorth Myrtle BeachBowline Boulevard0137
Long Branch EstatesConwayLong Branch Rd and Hwy 65074
Loris HeightsLoris150 Highway 747044
Magic OaksPawleys Island10798 Highway 17027
Magnolia LandingLongsHwy 9 & Circle M Road0122
Maple FarmsConwayHuckleberry Lane040
Maple GroveConwayAutumn Maple Drive0343
MaravillaMyrtle Beach76th Ave and Highway 17062
Marina VillageMyrtle BeachMarina Parkway and 79th Ave N0197
Marlowe FarmsLorisHewitt Road and Highway 660253
Marlowe VillageMyrtle Beach9500 Freewoods Road024
Marshwood LandingOcean Isle BeachOld Georgetown Rd & Ocean Isle Beach Rd550
MartinLongsUnderwood Road0107
McCormick Townhomes (StoneridgeForestbrook117 Pennsylania Drive2500
McLamb StationCalabashNo 5 School Rd NW184447
Medlen ParkConwayMedlen Parkway1020
MiddlebrookeMurrells InletUS 17 & Garden City Connector150338
Mills PointeConwayBelladora Road660
Mossy Hill TownhomesCalabashHickman Road NW5920
Mullet Creek TownhomesLittle RiverHighway 179100
Myrtle WestLorisMyrtle West Drive030
Norris FarmsConwayDock Road0134
North CoveCarolina ForestRiver Oaks Drive0220
Oak HavenConway1815 Westridge Boulevard010
Orchard ParkLittle RiverMineola and Apple Tree Lane081
Palmetto Bays EstatesConwaySC 814 & Route 544120350
Palmetto BluffLongsMcNeil Chapel Road0169
Palmetto RanchLongsHwy 905 & Old Buck Creek Rd318974
Palmetto SpringsConway101 Spring Beauty Drive0100
Palmetto TraceNorth Myrtle BeachAtlantic Breeze Drive1820
Pelican Pointe (Kingston Preserve)ConwayHwy 378 & Hemingway Chapel Rd0407
Pine RidgeMyrtle BeachUS 17 and Holmestown Rd975942
Pitch PinesGeorgetown511 Kent Road040
Ponds HavenLorisHolmes Branch & Highway 9028
Poplar OaksConway101 Anderson Tract Drive080
Remuda RunOcean Isle BeachOcean Isle Beach Road0140
Reserve at MillpondConwayMill Pond Lane2340
Ridge Road TractAynorRidge Road077
RidgecrestGalivants FerryRidge Rd and Grier Dock Rd0225
River Oaks - Fox and OtterCarolina ForestRiver Oaks Drive0363
Riverbank at Ocean IsleShallotteOcean Highway West (US 17)0115
RiverfieldConwayOld Pireway & Hwy 9050194

NOTE: The estimated planned units above are for information purposes only and there is no guarantee on the accuracy of this data.
See Horry County Planning and Zoning for current data.
HOME
Page
New Homes in Myrtle Beach
By Builder
New Homes in Myrtle Beach
By Community
Useful
References
New Homes in Myrtle Beach
News
New Homes in Myrtle Beach
Future Subdivisions
New Homes in Myrtle Beach
Recently Completed
New Homes in Myrtle Beach
Site Map

The Myrtle Beach community is rapidly growing and the new construction opportunities in Myrtle Beach are ever-changing. A significant amount of time is dedicated to ensuring that the content on this site is comprehensive and accurate. The efforts of our sponsors are greatly appreciated.
New Homes in Myrtle Beach
Primary Sponsor
Vsansant Realty Group - Full service real estate brokerage serving Myrtle Beach.
(843) 940-3609

Links to Useful Resources for Longs, SC