New Homes Myrtle Beach - Site will list all new homes in Myrtle Beach, SC
New Homes in Myrtle Beach
(843) 940-3609

This New Homes in Myrtle Beach site is focused solely on providing a simplified guide to all of the new home communities in Myrtle Beach, SC. This web site is independently managed to serve and support development of the Myrtle Beach community and is a unique Myrtle Beach new home resource. All Myrtle Beach new home communities are presented without the influence or dependence of community or builder advertising. Input to improving the quality of this community resource presenting new construction in Myrtle Beach is welcomed and appreciated. Information on this site was last updated October 2025.
Southwind Cove
Myrtle Beach New Home Community By Lennar
101 Southwind Cove, North Myrtle Beach, SC, 29582
Southwind Cove in North Myrtle Beach by Lennar
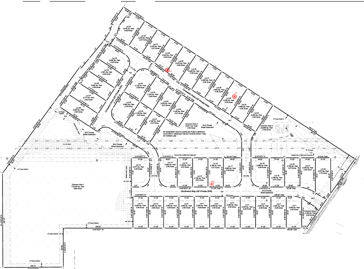
Preliminary Site Map
Southwind Cove
Preliminary Site Map for Southwind Cove by Lennar in North Myrtle Beach - data subject to change
For Information Purposes Only
Data Subject to Change
Data Courtesy of North Myrtle Beach
Prices (estimate only) Starting from : 371,000
Summary of this Myrtle Beach Area New Home Community:
Southwind Cove is a new home community in North Myrtle Beach that started presales in August of 2025.

Southwind Cove is conveniently located close to the Intracoastal Waterway near where Robert Edge Parkway intersects with Highway 17. Highway 31 and Highway 9 are both close to this location.

Bellasera and Carolina Keys are a couple of the existing communities that are adjacent to where Southwind Cove is being developed.

This approximate 8.52 acre of land was rezoned in 2022 and Lennar purchased this parcel in June of 2024.

Lennar Corporation is a home construction company based in Miami, FL. Since 1954, Lennar has built over one million new homes for families across America. Lennar builds in some of the nation's most popular cities, and their communities cater to all lifestyles and family dynamics, whether you are a first-time or move-up buyer, multigenerational family, or Active Adult. In 2023, Lennar was the second largest home construction company in the Unites States based upon number of homes sold. Lennar operates in 26 states and 75 markets across the Unites States. Lennar is well committed to building in the Myrtle Beach area. Lennar is actively building in over 20 communities in the Myrtle Beach area.

In 2021, Lennar acquired Realstar Homes, the privately-held Coastal Carolinas company operating along and well within a North and South Carolinas corridor that arcs as far north as Wilmington, N.C., and bends southwestward to Charleston, S.C. and Hilton Head. Realstar targets the Myrtle Beach area, with communities to the north up to Ocean Isle Beach, NC, including Pawleys Island, Conway, Myrtle Beach, Little River, and reaching south towards Hilton Head.

Current plans are for there to be 45 residential lots of single-family homes.

Lennar is offering the following Floor Plans in Southwind Cove.

Lennar's Savannah Floorplan in Southwind Cove

The Savannah plan has 3 bedrooms, 2.5 bathrooms, a 2 car garage, and 1,612 square feet of living space.

The Savannah model’s two-story home features a family room and modern kitchen that melds together to promote seamless everyday living, along with an entrance to the backyard for outdoor activities. Upstairs are all three bedrooms, including the owner’s suite with an en-suite bathroom and generous walk-in closet.

Lennar is pricing the Savannah floor plan from $371,000.

Lennar's Wilmington Floorplan in Southwind Cove

The Wilmington plan has 4 bedrooms, 3 bathrooms, a 1 car garage, and 1,835 square feet of living space.

The Wilmington model’s two-story home two-story home features a modern layout with an inviting open floorplan on the first level, with convenient access to an outdoor patio for seamless entertaining. A bedroom and full bathroom are located near the entry. Upstairs, three additional bedrooms surround a versatile loft space, including the luxe owner’s suite with a walk-in closet and en-suite bathroom.

Lennar is pricing the Wilmington floor plan from $378,000.

Existing Homes for Sale in this Myrtle Beach Area New Home Community:
Presales in the new home community of Southwind Cove in North Myrtle Beach started in August of 2025.
Homes for Sale in Southwind Cove

Myrtle Beach New Home Community News
New construction in Myrtle Beach - all active listings of new construction in Myrtle Beach
Myrtle Beach New Home Community News

Vansant Realty Group - real estate brokerage firm servicing Conway and the surrounding areas of Myrtle Beach.
(843) 940-3609
The builder of this Myrtle Beach new home community, Lennar, is also invested in other Myrtle Beach area new home communities. Below you will find other new home communities in Myrtle Beach which this builder is developing.
CommunityStarting PriceAreaAddressSubdivision Status
Hide details for LennarLennar
57th PlaceLongsWampee RoadFuture Subdivision
Arcadia$325,000Forestbrook294 Empyrean CircleUnder Construction
Artisan Living @ SurfsideSurfsideScipio LaneFuture Subdivision
Beach View at Grande Dunes$928,000Myrtle Beach101 Promenade DriveUnder Construction
Beach Village$306,000Surfside344 North Reindeer RoadLennar Completed 2023
Belle Harbor$340,000Myrtle Beach2409 Rock Dove DriveLennar Completed 2022
Berwick at Windsor Plantation$325,000Surfside3-A Nairn DriveDevelopment Completed 2022
Birchwood$255,000Longs101 Birchwood DriveUnder Construction
Brunswick Plantation$220,000Calabash8881 Radcliff Drive NWUnder Construction
Calabash PointeCalabashHickman Rd NW & Hwy 17Future Subdivision
ClearbrookConwayJohn Doctor RoadFuture Subdivision
Collins Walk$240,000Conway1105 Blueback Herring WayUnder Construction
Cooper's Bluff$269,000ConwaySwing Bridge WayLennar Completed 2024
Covington Lake East$350,000Carolina Forest111 East Covington DriveLennar Completed 2022
Fieldview$280,000Conway101 Fox Rae DriveUnder Construction
Forestbrook Estates$250,000Forestbrook116 Long Cane DriveUnder Construction
Fox HollowCalabash423 Pea Landing Rd NWFuture Subdivision
Glenmoor$315,000Conway219 Glenmoor DriveDevelopment Completed 2022
Hidden Pines$403,000Carolina Forest124 Albatross WayDevelopment Completed 2025
Hoffman Park$280,000Myrtle Beach121 Hoffman Park DriveDevelopment Completed 2025
Hunters Trace$300,000Calabash1084 Harbor DriveUnder Construction
Indigo Creek$440,000Murrells Inlet9680 Indigo Creek BlvdUnder Construction
Kingston Oaks$235,000Conway101 Collins Jollie RoadUnder Construction
Longview$290,000Longs124 Cypress Tree LoopDevelopment Completed 2022
McCormick TownhomesForestbrookMcCormick RoadFuture Subdivision
Osprey Isle$240,000Ocean Isle Beach101 Osprey Isle DriveUnder Construction
Palm Lakes Plantation$265,000Little River400 Wood Forest CourtLennar Completed 2022
Poplar OaksConway101 Anderson Tract DriveFuture Subdivision
Saddle Ridge$268,000Conway108 Saddle StreetDevelopment Completed 2025

HOME
Page
New Homes in Myrtle Beach
By Builder
New Homes in Myrtle Beach
By Community
Useful
References
New Homes in Myrtle Beach
News
New Homes in Myrtle Beach
Future Subdivisions
New Homes in Myrtle Beach
Recently Completed
New Homes in Myrtle Beach
Site Map

The Myrtle Beach community is rapidly growing and the new construction opportunities in Myrtle Beach are ever-changing. A significant amount of time is dedicated to ensuring that the content on this site is comprehensive and accurate. The efforts of our sponsors are greatly appreciated.
New Homes in Myrtle Beach
Primary Sponsor
Vsansant Realty Group - Full service real estate brokerage serving Myrtle Beach.
(843) 940-3609

Links to Useful Resources for Longs, SC