New Homes Myrtle Beach News
New Homes in Myrtle Beach
(843) 940-3609
Myrtle Beach New Home Community News
Myrtle Beach
New Home
Community
NEWS
Myrtle Beach New Home Community News

News Date: 08/09/2025

News Title: D. R. Horton is very active in building just outside of downtown Conway off of Cultra Road – planning another new community - The Reserve at Elmhurst
The new home community of The Reserve at Elmhurst is conveniently located off of Cultra Road just a short distance from downtown Conway.

This 109.13 acre piece of land is in the process of being rezoned from Commercial Forest Agriculture to Medium Density Residential. In addition, a petition to annex the property into the city of Conway for residential development has been submitted.

Over the past few years there has been an uptick of annexations of properties into the City of Conway. Annexation would incorporate The Reserve at Elmhurst into the City of Conway limits. It is the process of transferring the parcel of land from an unincorporated area of the county (i.e. Horry County) into the service area and jurisdiction of a city (i.e. Conway). Being contiguous to the Conway municipal boundaries is a key eligibility requirement for annexation.

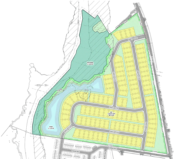
The potential development of The Reserve at Elmhurst is currently in the design phase and expected to be submitted for review in the near future. A preliminary sketch plan proposed this project to be developed in 3 phases, containing a total of 144 single-family homes on approximately 45.62 acres of land.

The Reserve at Elmhurst would be close to the existing subdivision of Midtown Village. Rivertown Row North, by Beverly Homes, is just down Cultra Road from The Reserve at Elmhurst. Lennar owns a piece of property adjacent to where The Reserve at Elmhurst is being planned but has not yet announced plans for their property.

D. R. Horton will be the builder in The Reserve at Elmhurst. D. R. Horton is actively building in this area off of Cultra Road in Conway. D. R. Horton is currently building in Kingston Bay and is about to start presales in the new home community of Chapman Village.

D. R. Horton has been the largest homebuilder by volume in the United States since 2002 and has closed more than 1,100,000 homes in its 46 year history. D. R. Horton currently operates in 126 markets in 36 states across the United States and is engaged in the construction and sale of high quality homes through its diverse product portfolio with sales prices generally ranging from $200,000 to over $1,000,000. During the twelve month period ended March 31, 2025, D. R. Horton closed 86,137 homes in its homebuilding operations, in addition to 3,312 single-family rental homes and 2,282 multi-family rental units in its rental operations. D. R. Horton is well committed to the Myrtle Beach area with over 40 communities either currently under construction of being planned for future development in the area.

As of August 2025, D. R. Horton has not yet announced timing for development in The Reserve at Elmhurst.

Homes for sale in The Reserve at Elmhurst


The Reserve at Elmhurst in Conway
Preliminary Site Plan for The Reserve at Elmhurst
For Information Purposes Only – Not For Distribution
Preliminary Site Plan for Elmhurst Crossing - for information priposes only - data courtest Conway City Council
information purposes only
Data subject to change
Data courtesy Conway City Council

HOME
Page
New Homes in Myrtle Beach
By Builder
New Homes in Myrtle Beach
By Community
Useful
References
New Homes in Myrtle Beach
News
New Homes in Myrtle Beach
Future Subdivisions
New Homes in Myrtle Beach
Recently Completed
New Homes in Myrtle Beach
Site Map
Vsansant Realty Group - Full service real estate brokerage serving Myrtle Beach.
(843) 940-3609