New Homes Myrtle Beach - Site will list all new homes in Myrtle Beach, SC
New Homes in Myrtle Beach
(843) 940-3609

This New Homes in Myrtle Beach site is focused solely on providing a simplified guide to all of the new home communities in Myrtle Beach, SC. This web site is independently managed to serve and support development of the Myrtle Beach community and is a unique Myrtle Beach new home resource. All Myrtle Beach new home communities are presented without the influence or dependence of community or builder advertising. Input to improving the quality of this community resource presenting new construction in Myrtle Beach is welcomed and appreciated. Information on this site was last updated May 2026.
The Reserve at Elmhurst
Myrtle Beach New Home Community By D. R. Horton
Cultra Road & Oak Street, Conway, SC, 29526
The Reserve at Elmhurst in Conway
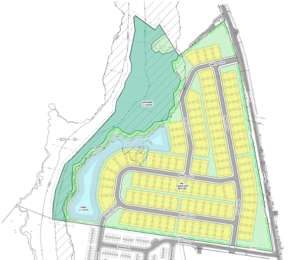
Preliminary Site Plan for The Reserve at Elmhurst
For Information Purposes Only – Not For Distribution
Preliminary Site Plan for Elmhurst Crossing - for information priposes only - data courtest Conway City Council
information purposes only
Data subject to change
Data courtesy Conway City Council
Prices (estimate only) Starting from :
Summary of this Myrtle Beach Area New Home Community:
The new home community of The Reserve at Elmhurst is conveniently located off of Cultra Road just a short distance from downtown Conway.

This 109.13 acre piece of land where The Reserve at Elmhurst is being planned is in the process of being rezoned from Commercial Forest Agriculture to Medium Density Residential.  In addition, a petition to annex the property into the city of Conway for residential development has been submitted.

The potential development of The Reserve at Elmhurst is currently in the design phase and expected to be submitted for review in the near future. A preliminary sketch plan proposed this project to be developed in 3 phases, containing a total of 125 single-family homes on approximately 45.62 acres of land.

Phase 1 - 29 single-family homes in the Reserve at Elmhurst
Phase 2 - 48 single-family homes in the Reserve at Elmhurst
Phase 3 - 48 single-family homes in the Reserve at Elmhurst

The Reserve at Elmhurst would be a next door neighbor to the existing subdivision of Midtown Village.

D. R. Horton will be the builder in The Reserve at Elmhurst.  D. R. Horton is actively building in this area off of Cultra Road in Conway.  D. R. Horton is currently building in Kingston Bay and Chapman Village.

D. R. Horton has not yet announced timing for development in The Reserve at Elmhurst.

Existing Homes for Sale in this Myrtle Beach Area New Home Community:
Homes for Sale in The Reserve at Elmhurst

Myrtle Beach New Home Community News
New construction in Myrtle Beach - all active listings of new construction in Myrtle Beach
Myrtle Beach New Home Community News

Vansant Realty Group - real estate brokerage firm servicing Conway and the surrounding areas of Myrtle Beach.
(843) 940-3609
Planned Future Subdivisions in the Myrtle Beach Area
The Reserve at Elmhurst is one of several new future subdivisions planned for the Myrtle Beach area. See below for a more complete list of the future subdivisions planned for the Myrtle Beach area.
CommunityAreaAddressMulti-FamilySingle-Family
57th PlaceLongsWampee Road8080
Amerling RidgeLongsLong Acres Drive090
Ash PlantationConwayHighway 707068
Barefoot LakesNorth Myrtle BeachMarsh Glen Drive059
Bayboro QuartersLorisHighway 450206
BaylineCalabashThomasboro Road3631796
Beachside Village CommonsMyrtle Beach3122 Shetland Lane043
Boggy EstatesConwayBoggy Road026
BrookhavenConwayJuniper Bay Rd & Hwy 37801200
Buck Creek CoveLongsHighway 9 East074
Calabash PointeCalabashHickman Rd NW & Hwy 172160
Calabay ParkLongsRte 9 & Hemingway Rd230400
CamberlyCarolina ForestTibwin Avenue058
Cameron PinesOcean Isle Beach101 Cameron Pines Drive0125
Cane Patch NorthMyrtle Beach76th Ave and Highway 17062
Carolina Forest WaterwayCarolina ForestRiver Oaks Drive0560
Carroll FarmsConwayW Hwy 19 and Hwy 668046
Cascadia at Grande DunesMyrtle Beach628 Verdura Way045
Cates BayConwaySpring Beauty Drive0116
Cates Bay CrossingConwayCates Bay Highway095
Chatham VillageCarolina ForestPostal Way15410
Church Street TownhomesMyrtle BeachChurch Street220
ClearbrookConwayJohn Doctor Road0230
Collins JollieConwayCollins Jollie Road01333
Colonial FarmsConwaySC Highway 54897131
Copper PointeConway116 Copper Pointe Loop0153
Cottages on MainNorth Myrtle BeachCedar Ave and Main Street019
Cottonwood CoveCarolina ForestRiver Oaks Drive018
Country Manor EstateConwayFour Mile Road049
Del Webb Ocean Isle BeachNorth Myrtle Beach3112 Wuther Squall Way150
Dockside PreserveNorth Myrtle BeachSandridge Road & Old Crane0127
Dunn's FerryConway1260 West Cox Ferry Road051
East Cox Ferry TownhomesConwayEast Cox Ferry Road750
Farm HavenAynorCostie Allen Road077
FarmsteadLittle RiverRoute 50 & McLamb Road NW315134
Finley WoodsLorisSuggs Street036
Forest View TownhomesCalabashAsh-Little River Rd NW1070
Forestbrook VillageForestbrook104 Long Cane Drive3000
Fox BayLorisCarolina Drive012
Fox HollowCalabash423 Pea Landing Rd NW0166
Glenwood at Cates BayConwayCates Bay Highway0100
Grande PinesSocasteeHwy 17 and Hwy 544143107
Half Moon BayLongsToanki Lane and Tallwood Rd 800
Haven at Wild WingConwayWild Wing Boulevard5340
Heron LandingLongsKayla Circle0140
Hickman Branch TownhomesCalabashHickman Road NW3160
HomesteadConwayHighway 9050127
Hudson Creek at Palmetto HarborNorth Myrtle BeachCenith Drive033
Hugo Road EstatesConwayHugo Road053
Indigo BayMyrtle Beach3050 Vasco Loop0160
Islecrest at Grande DunesMyrtle Beach79th Ave & Marina Pkwy0111
Islewater at Grande DunesMyrtle Beach79th Ave & Marina Pkwy086
Jinny's CreekShallotte1178 Goose Creek Road SW0129
Juniper BayConway1400 Busy Corner Road061
Kingston LakesLongs7650 S. Highway 9093
Kingston PreserveConwayHwy 378 & Hemingway Chapel Rd0407
LaDane GardensOcean Isle Beach7060 Old Georgetown Road SW0525
Leisure LaneSocasteeLeisure Lane0154
Long Bay VillageNorth Myrtle BeachBowline Boulevard0137
Long Branch EstatesConwayLong Branch Rd and Hwy 65074
Loris HeightsLoris150 Highway 747044
Magic OaksPawleys Island10798 Highway 17027
Magnolia LandingLongsHwy 9 & Circle M Road0122
Maple FarmsConwayHuckleberry Lane040
Maple GroveConwayAutumn Maple Drive0343
MaravillaMyrtle Beach76th Ave and Highway 17062
Marina VillageMyrtle BeachMarina Parkway and 79th Ave N0197
Marlowe FarmsLorisHewitt Road and Highway 660253
Marlowe VillageMyrtle Beach9500 Freewoods Road024
Marshwood LandingOcean Isle BeachOld Georgetown Rd & Ocean Isle Beach Rd550
MartinLongsUnderwood Road0107
McCormick Townhomes (StoneridgeForestbrook117 Pennsylania Drive2500
McLamb StationCalabashNo 5 School Rd NW184447
Medlen ParkConwayMedlen Parkway1020
MiddlebrookeMurrells InletUS 17 & Garden City Connector150338
Mills PointeConwayBelladora Road660
Mossy Hill TownhomesCalabashHickman Road NW5920
Mullet Creek TownhomesLittle RiverHighway 179100
Myrtle WestLorisMyrtle West Drive030
Norris FarmsConwayDock Road0134
North CoveCarolina ForestRiver Oaks Drive0220
Oak HavenConway1815 Westridge Boulevard010
Orchard ParkLittle RiverMineola and Apple Tree Lane081
Palmetto Bays EstatesConwaySC 814 & Route 544120350
Palmetto BluffLongsMcNeil Chapel Road0169
Palmetto RanchLongsHwy 905 & Old Buck Creek Rd318974
Palmetto SpringsConway101 Spring Beauty Drive0100
Palmetto TraceNorth Myrtle BeachAtlantic Breeze Drive1820
Pelican Pointe (Kingston Preserve)ConwayHwy 378 & Hemingway Chapel Rd0407
Pine RidgeMyrtle BeachUS 17 and Holmestown Rd975942
Pitch PinesGeorgetown511 Kent Road040
Ponds HavenLorisHolmes Branch & Highway 9028
Poplar OaksConway101 Anderson Tract Drive080
Remuda RunOcean Isle BeachOcean Isle Beach Road0140
Reserve at MillpondConwayMill Pond Lane2340
Ridge Road TractAynorRidge Road077
RidgecrestGalivants FerryRidge Rd and Grier Dock Rd0225
River Oaks - Fox and OtterCarolina ForestRiver Oaks Drive0363
Riverbank at Ocean IsleShallotteOcean Highway West (US 17)0115
RiverfieldConwayOld Pireway & Hwy 9050194
Rivers Edge VillageConwayE. Country Club Dr0127
Riverwood at Sherwood ForestConwayGraham Road0147
Rolling HillsAynorHighway 501 & Floyd Page0421
Rosewood DriveLorisRosewood Drive0168
Rye Pint TownhomesCalabashHickman Road NW1760
Sailors HavenCalabash776 Seaside Road0299
Saint Mark's WoodsConwayHwy 60 and E. Cox Ferry Rd7891
SayeBrook EastSurfsideSayeBrook Pkwy and Hwy 5442355685
SayeBrook EastSurfsidePalmetto Point Blvd2355685
SayeBrook EastSurfsideSayeBrook Pkwy and Hwy 5442355685
Shell Bay EstatesConwayHighway 905022
Shelly FarmConway580 Brown Swamp Road0205
Shelly ParkConwayShelly Farm Rd and Bucksville Dr0384
Silver Oaks CottagesLorisNorth Cox Road031
Snow Hill EstatesConwayE. Country Club Dr & Hwy 905043
South Inlet DevelopmentLongsW Bear Grass Rd & Circle Bay Dr0213
SouthcreekCarolina Forest4900 National Drive080
Sparrow PointLorisSparrow Ln & Suggs St011
Summers CoveLittle RiverCoates Road & Highway 900212
SweetgrassPawleys IslandCastaway Key Dr & Petigru Rd400
Thamesmen VillageShallotte1125 Bay Road SW066
The Bluffs at Palmetto HarborNorth Myrtle BeachTom E. Chestnut Road041
The Meadows at Four MileConwayFour Mile Road086
The Reserve at ElmhurstConwayCultra Road & Oak Street0125
The Townes at The LandingLittle RiverSandbay Drive056
Three Nineteen NorthAynorHighway 319 & Willowdale0355
Timber BayLongs1091 West Highway Nine063
TimberlineConwayAllentown Road0240
Townes at Haven ViewMurrells InletMcDowell Shortcut Road1500
Trestle RidgeAynorHighway 3190163
Triple Crown EstatesConwayFour Mile Road030
Tupelo GroveCarolina ForestRiver Oaks Drive018
Valley RidgeLongs348 Pleasant Valley Dr0289
Village at Highway 57Little RiverHighway 57100250
Warden StationConwayPitch Landing Rd & Hwy 70119381380
Waterfront VillasMyrtle BeachRiver Landing Boulevard1130
West Bear GrassLongsWest Bear Grass Rd071
Westbury PlantationConwayOld Reaves Ferry Road0187
Wildberry EstatesLorisHighway 9 and Highway 701057
WildwoodLoris635 Highway 9 Bypass0173
Willows at Pitch LandingConwayPitch Landing Road0121
Winyah WoodsLongsBig Cedar Branch035
Woodland ReserveCalabashAsh Little River Rd and Jamestown Ln0673
World TourCarolina ForestWorld Tour Boulevard1800
Yadkin River PlantationLongsHemingway Road318974

NOTE: The estimated planned units above are for information purposes only and there is no guarantee on the accuracy of this data.
See Horry County Planning and Zoning for current data.
HOME
Page
New Homes in Myrtle Beach
By Builder
New Homes in Myrtle Beach
By Community
Useful
References
New Homes in Myrtle Beach
News
New Homes in Myrtle Beach
Future Subdivisions
New Homes in Myrtle Beach
Recently Completed
New Homes in Myrtle Beach
Site Map

The Myrtle Beach community is rapidly growing and the new construction opportunities in Myrtle Beach are ever-changing. A significant amount of time is dedicated to ensuring that the content on this site is comprehensive and accurate. The efforts of our sponsors are greatly appreciated.
New Homes in Myrtle Beach
Primary Sponsor
Vsansant Realty Group - Full service real estate brokerage serving Myrtle Beach.
(843) 940-3609

Links to Useful Resources for Longs, SC